1431 Rankin Way, Innisfil, ON L9S 0C5
Toggle Navigation
Images
Videos
Floor Plans
Map
1431 Rankin Way
Innisfil, ON L9S 0C5
Scroll to Content
Images
Slideshow
Photo Grid
Hide
Previous
Next
Show more
Videos
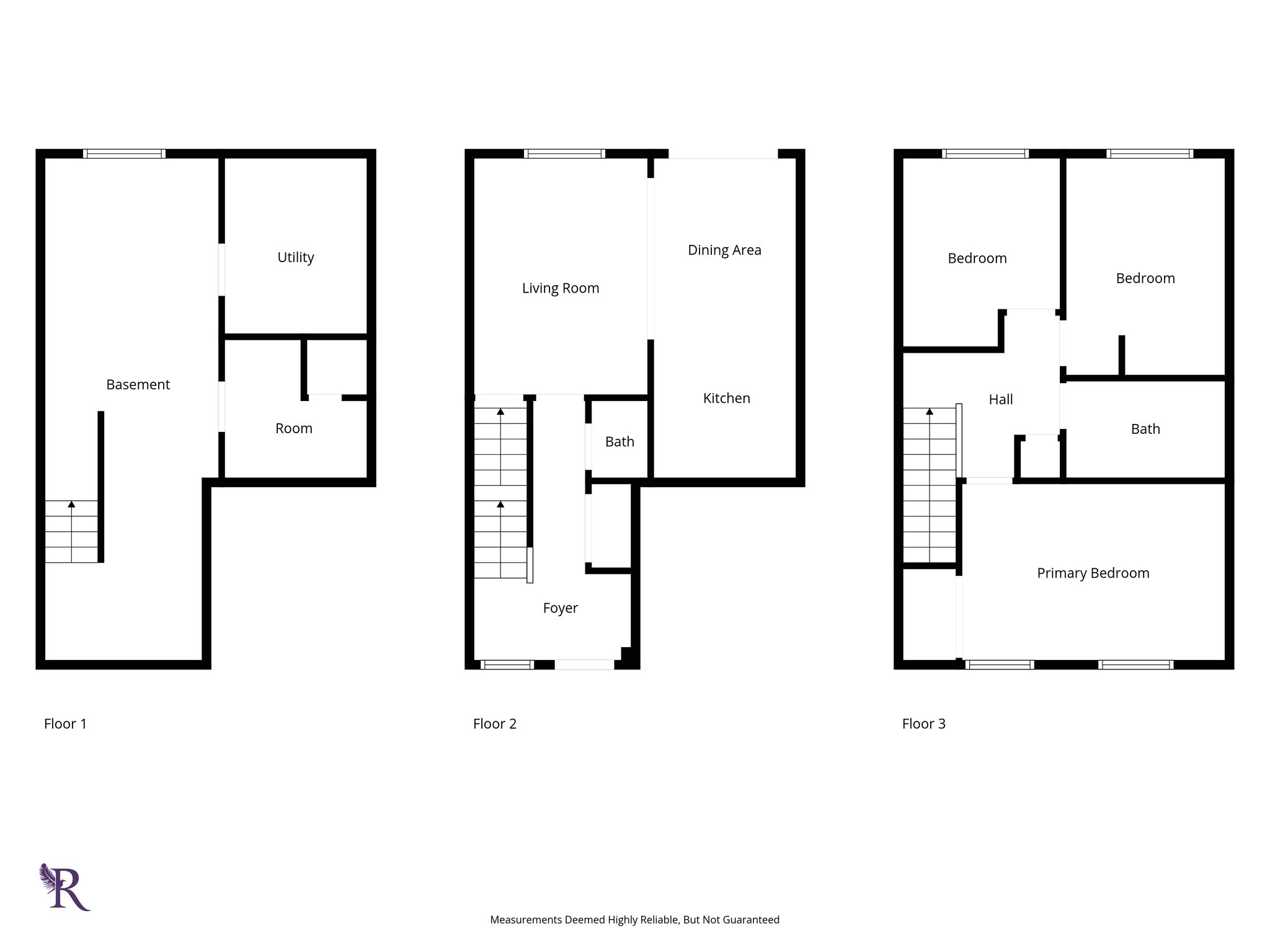
Floor Plans
Slideshow
Photo Grid
Hide
Previous
Next